Villa Heev
Client: Dehghan
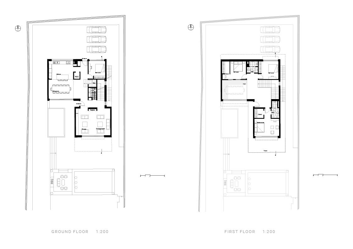
HEEV Villa project is designed on a land lot with an area of 1000 square meters. It consists of 330 square meters on two floors and is located in Heev city of Alborz province. Due to the mountainous landscape of the town and the location of the plot along the river, we tried to establish a stronger connection with the surrounding environment, reduce the excessive progress in the vegetation of the area, and avoid unnecessary destruction. Thus, we reduce the advancing on the ground and compensate for this reduction, we increased in height to provide the desired physical program.
Concept
In the first stage, based on the location of the building (north) and the entrance, and in order to provide a better view of the village and the surrounding area, we considered the volume of the building on the ground so that we have a margin from the back of the building to the limits of the plot. Build buildings. Then, in order to invite as much light as possible, we separated one-quarter of the mass and utilize large openings to maximize the depth of light inside the building with a high glass wall. In the next stage, we considered the balcony on the riverside to receive a better view, and at the end, we designed and arranged the green spaces in front of the building based on the existing landscape and vegetation.
The use of neutral materials in the built environment, increasing the usage of glass in order to better communicate with the environment, eliminating the visibility of parked vehicles, and maintaining a proper distance from neighbors have been other issues that we addressed in this project.
- Category
- Villa
- Type
- Novation
- Location
- Nazarabad, Karaj
- Status
- Under Construction
- Year
- 2020
- Constructor
- Hosein Jalali










