Sky Arc
Client: -
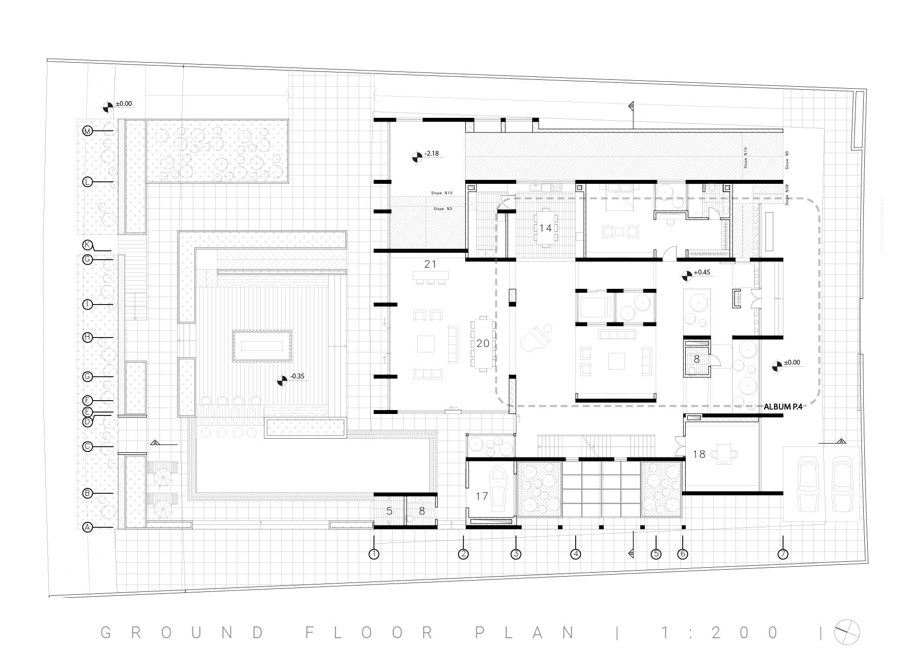
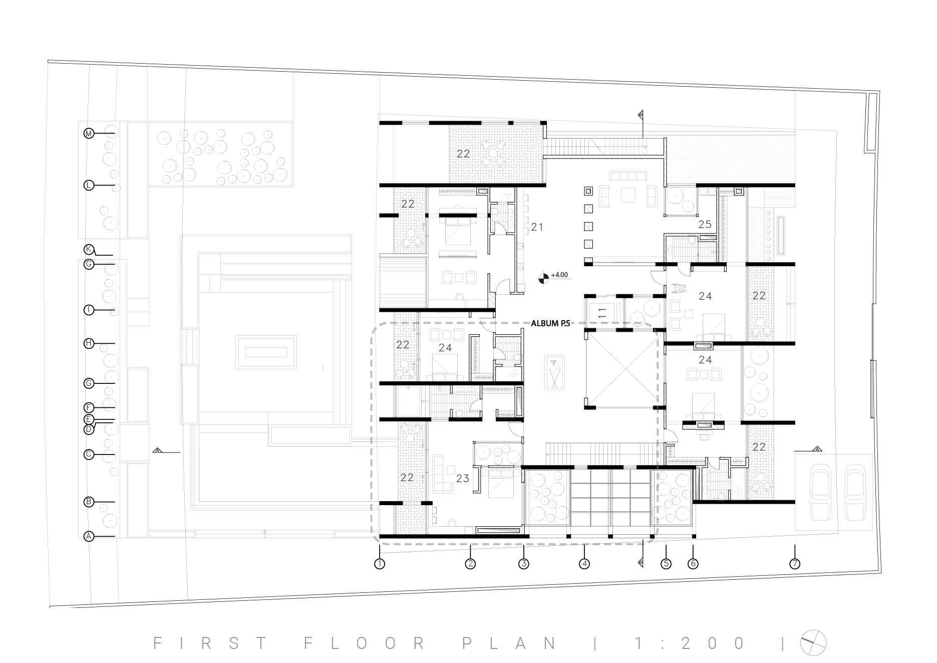
Sky Arc is a house designed on the high-end artificial island of Daria, off the shore of Dubai, UAE. The house is designed for a family of six, one of whose children is quadriplegic. We were highly inspired by the shape of traditional Arabic arches of Dubai as a visual guide, a spatial divider, and a structural element. The design aims at addressing the dichotomies that are interwoven into the socio-political and environmental context of the project, as well as the brief and wishes of the client. The project, on the one hand, demands to demonstrate the residents’ status, and on the other hand, requires relaxing and quiet, yet sometimes playful and uplifting spatial qualities. The project resides on the edge of the gigantic urban sprawl of Dubai, and the Persian Gulf, a well-known tourist attraction and resort. Thus, the project set a conceptual gradient from the street side (representing the city, traditional, regional values, and way of life) to the beachside (representing joy, nature, modern and liberal values) to manifest the associated values to the architecture of the building as a whole. This divide is most visible on the façades of both sides, but it is also the main leading force behind landscape design and spatial organization. Through this spatial organization strategy, the project divides and places the required functions throughout its mass. At the boundary where the two strategies collide, the project offers communal areas that would serve the residents and their potential guests.
- Category
- Villa
- Type
- Competition
- Location
- Dubai, Emirates
- Status
- Concept Design
- Year
- 2022












